Fügung

Öffnung am Rand

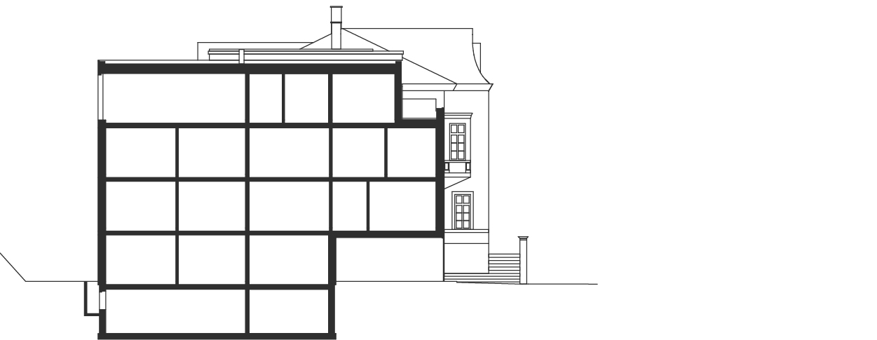
Promenadenhaus in Kufstein (A)

Eine transparente Fuge trennt das Wohnhaus in Thermowandkonstruktion von einer im Jahr 1876 errichteten Villa.
Die geschosshohen Öffnungen liegen jeweils am Rand eines Wandelements. Das benachbarte Wandelement begrenzt die jeweilige Öffnung. Die Vorsatzschalen der Wandelemente des 2. OG sind als Brüstung der Dachterrasse über die Dachebene geführt. Die Wandelemente sind bis zu 3,60 m hoch und haben auf der Außenseite eine gefräste Oberfläche.

Architekt: MICHAEL LUKASSER architekt, Innsbruck
Ort: Kufstein (A)
Baujahr: 2016

Ansicht
Grundriss
Schnitt
1. Thermowand mit Umkantung
Außenschale
Dämmung
Kernbeton
Innenschale

2. Fenster Aluminium, raumhoch
Profil hinter Umkantung
der Außenschale
transparents Brüstung

3. StB-Decke über Autoabstellplatz
auf Unterseite gedämmt und verputzt


Gestalten mit Thermowand-Elementen

Die von der Syspro-Gruppe entwickelten und im Jahr 1999 patentierten Thermowand-Elemente sind vorgefertigte Wandkonstruktionen mit werkseitig integrierter Kerndämmung. Sie bestehen aus dem konventionellen Doppelwandsystem mit Betonfertigteilplatten als Innen- und Außenschale sowie Vergussbeton. Syspro-Thermowände werden vornehmlich in der Konstruktion von Fassaden- und Außenwandbereichen von Gebäuden eingesetzt. Sie sind flexibel dimensionierbar, unkompliziert montierbar und können alle gewünschten energetischen Anforderungen an die Gebäudehülle, bis hin zum Niedriegstenergiehaus erfüllen.

Das Booklet „Gestalten mit Thermowand-Elementen“ richtet sich an Planer, Studierende, Architekten sowie Bauschaffende und ist als Download oder in Printform erhältlich.

Weitere Informationen und Unterlagen zum Bauen mit Thermowand-Elementen