Fügung

Öffnung im Wandelement

Baubetriebshof in Ulm

Der Kopfbau des Baubetriebs ist geprägt durch Lochöffnungen in geschosshohen Wandelementen.
Die Öffnungen in den Wandelementen sowie die Wandelemente selbst bewahren ihre Autonomie. Die Fugen der Wandelemente versetzen
sich, ebenso die Fensterelemente.
Fensteröffnungen im Erdgeschoss stehen bodenhohen Lochöffnungen im Obergeschoss innerhalb eines Thermowandelements gegenüber.

Architekt: hochstrasser. gesellschaft für architektur mbh, Ulm
Ort: Neu-Ulm
Baujahr: 2019

Ansicht
Grundriss
Schnitt
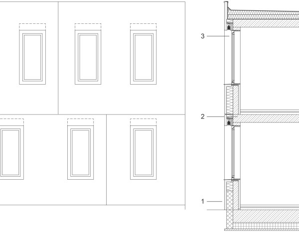
1. Thermowand
Außenschale
Dämmung
Kernbeton
Innenschale

2. StB-Decke
Zementestrich beschichtet

3. Holz-Aluminum-Fenster
Laibung außen Betonaufkantung,
innen vierseitig umlaufend
HPL-Laibungsrahmen
verdeckter Sonnenschutz,
Raffstore hinter Außenschale


Gestalten mit Thermowand-Elementen

Die von der Syspro-Gruppe entwickelten und im Jahr 1999 patentierten Thermowand-Elemente sind vorgefertigte Wandkonstruktionen mit werkseitig integrierter Kerndämmung. Sie bestehen aus dem konventionellen Doppelwandsystem mit Betonfertigteilplatten als Innen- und Außenschale sowie Vergussbeton. Syspro-Thermowände werden vornehmlich in der Konstruktion von Fassaden- und Außenwandbereichen von Gebäuden eingesetzt. Sie sind flexibel dimensionierbar, unkompliziert montierbar und können alle gewünschten energetischen Anforderungen an die Gebäudehülle, bis hin zum Niedriegstenergiehaus erfüllen.

Das Booklet „Gestalten mit Thermowand-Elementen“ richtet sich an Planer, Studierende, Architekten sowie Bauschaffende und ist als Download oder in Printform erhältlich.

Weitere Informationen und Unterlagen zum Bauen mit Thermowand-Elementen