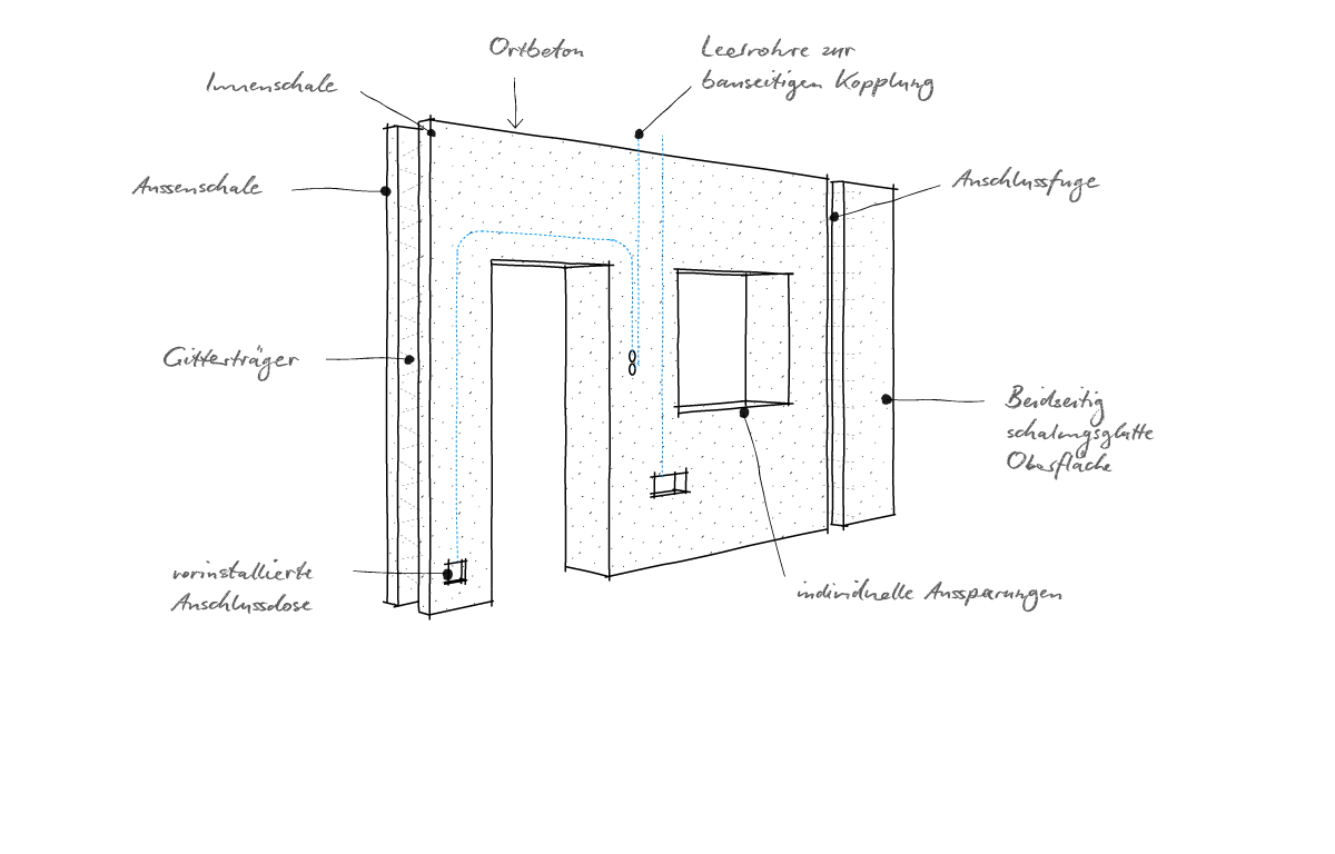
Die Syspro-Doppelwand ist eine massive Wandkonstruktion, die aus zwei durch Gitterträger miteinander verbundenen Stahlbetonschalen besteht. Zwischen den Schalen verbleibt ein Zwischenraum, der nach der Montage mit Ortbeton ausgegossen wird. Sobald der Füllbeton erhärtet ist, wirkt der Gesamtquerschnitt wie eine monolithisch hergestellte Wand.
Typische Einsatzgebiete sind tragende Außen- und Innenwände im Wohnungs-, Gewerbe- und Industriebau.
Ein Einsatz als Weiße Wanne bei anstehendem Grundwasser oder drückendem Wasser ist ebenfalls möglich und üblich.
Spezifikationen sind vom Hersteller abhängig und daher bei den Mitgliedswerken individuell anzufragen.
Die Syspro-Doppelwand überzeugt einerseits aufgrund ihrer Wirtschaftlichkeit (keine aufwendigen Schalungsarbeiten bzw. Kosten für Schalungskauf, -transport, -reinigung und -vorhaltung, Doppelwandelemente werden „just-in-time“ geliefert etc.) und andererseits, wenn aus einer anspruchsvollen Geometrie heraus besondere Anforderungen an die Anordnung und Ausführung von Fugen, Aussparungen und Einbauteilen vorliegen. Die witterungsunabhängige Fertigung im Werk ermöglicht eine hohe Entwurfsfreiheit, Flexibilität und Präzision der Produkte.
Die Syspro-Doppelwand wird von allen Syspro-Mitgliedern in ihren projektspezifischen und individuellen Besonderheiten gefertigt. Hier finden Sie den für Ihr Projekt passenden Ansprechpartner in Ihrer Nähe:








