Fügung

Fugen durchlaufend

Bürogebäude in Geisingen

Das Bürogebäude ist bestimmt durch eine Lochfassade, in der jede Öffnung über fortlaufende Fugen festgelegt ist. Klar definiert gibt es eine Brüstung in Fensterbreite, zwischen den Fenstern ein geschosshohes Wandelement. Die fein gerillte Oberfläche dieser Wandelemente entstand durch das Einlegen einer Strukturmatrize.
Alle Außenwandelemente sind Thermowände. Das Gebäude hat Passivhausstandard. Energetisch wird das Gebäude über einen Nahwärmeanschluss versorgt.

Architekt: Architekturbüro Limberger, Donaueschingen
Ort: Geisingen
Baujahr: 2014

Ansicht
Grundriss
Schnitt
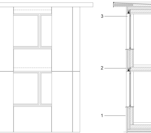
1. Thermowand
Außenschale
Dämmung
Kernbeton
Innenschale

2. Filigrandecke mit Aufbeton
Industrieparkett auf Zementestrich

3. Fenster, Anschlag hinter
Außenschale
Betonendabschalung innen und
Betonaufkantung außen
verdeckter Sonnenschutz,
Raffstore hinter Außenschale


Gestalten mit Thermowand-Elementen

Die von der Syspro-Gruppe entwickelten und im Jahr 1999 patentierten Thermowand-Elemente sind vorgefertigte Wandkonstruktionen mit werkseitig integrierter Kerndämmung. Sie bestehen aus dem konventionellen Doppelwandsystem mit Betonfertigteilplatten als Innen- und Außenschale sowie Vergussbeton. Syspro-Thermowände werden vornehmlich in der Konstruktion von Fassaden- und Außenwandbereichen von Gebäuden eingesetzt. Sie sind flexibel dimensionierbar, unkompliziert montierbar und können alle gewünschten energetischen Anforderungen an die Gebäudehülle, bis hin zum Niedriegstenergiehaus erfüllen.

Das Booklet „Gestalten mit Thermowand-Elementen“ richtet sich an Planer, Studierende, Architekten sowie Bauschaffende und ist als Download oder in Printform erhältlich.

Weitere Informationen und Unterlagen zum Bauen mit Thermowand-Elementen