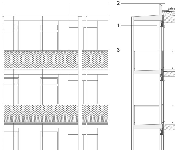
Fügung

Geschosshohe Öffnung zwischen
Wandelementen - Öffnung mit Attika

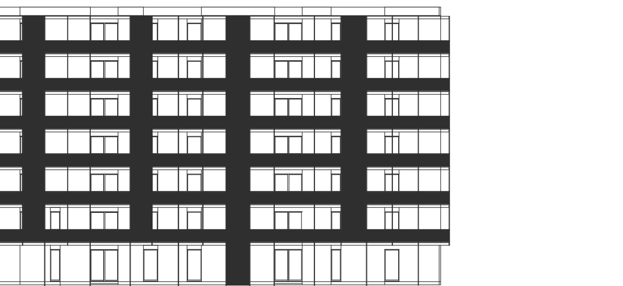
Wohnanlage in Dübendorf (CH)

Nach Schließung der Firma Zwicky & Co wurde das Areal zu einem Quartier mit unterschiedlichen Teilgebieten entwickelt. Neben bestehenden Gebäuden prägen neue Gebäudetypen in Thermowand-konstruktion mit industriell anmutenden Laubengängen und Balkonen das Areal. Die Architektur wird geprägt von einem Wechsel aus geschosshohen Fenstern und geschlossenen Wandelementen.

Architekt: Schneider Studer Primas GmbH, Zürich
Ort: Dübendorf, Kanton Zürich (CH)
Baujahr: 2016

Ansicht
Grundriss
Schnitt
Landschaftsarchitekt: Lorenz Eugster Landschaftsarchitektur und Städtebau GmbH, Zürich
Projektentwicklung: Senn Resources AG, St.Gallen mit Wüest & Partner, Zürich
1. Thermowand und
Fensterelement mit außenliegendem
Sonnenschutz im Wechsel
Sonnenschutz-Kassette mit Raffstore

2. Deckenplatte im Gefälle
mit Kragplattenanschluss
Dampfsperre
Dämmung PUR
Abdichtung
Dachbegrünung

3. Holz-Metall-Fenster
mit Dreifachverglasung
und Rahmenverbreiterung


Gestalten mit Thermowand-Elementen

Die von der Syspro-Gruppe entwickelten und im Jahr 1999 patentierten Thermowand-Elemente sind vorgefertigte Wandkonstruktionen mit werkseitig integrierter Kerndämmung. Sie bestehen aus dem konventionellen Doppelwandsystem mit Betonfertigteilplatten als Innen- und Außenschale sowie Vergussbeton. Syspro-Thermowände werden vornehmlich in der Konstruktion von Fassaden- und Außenwandbereichen von Gebäuden eingesetzt. Sie sind flexibel dimensionierbar, unkompliziert montierbar und können alle gewünschten energetischen Anforderungen an die Gebäudehülle, bis hin zum Niedriegstenergiehaus erfüllen.

Das Booklet „Gestalten mit Thermowand-Elementen“ richtet sich an Planer, Studierende, Architekten sowie Bauschaffende und ist als Download oder in Printform erhältlich.

Weitere Informationen und Unterlagen zum Bauen mit Thermowand-Elementen