01.03.2021

Pavillon aus R-Beton in Pirmasens

SySpro-Gruppe liefert erstmals tragende Fertigteile
2. Pilotprojekt zum Abschluss des EU-Projektes SeRaMCo

Das Ziel des kurz vor dem Abschluss stehenden EU-Projektes SeRaMCo (Secondary Raw Materials for Concrete Precast Products) ist die Steigerung des praktischen Einsatzes recycelter Bestandteile im Betonbau im Sinne der Nachhaltigkeit. An dem Forschungsprojekt mit über sieben Millionen Euro Gesamtvolumen waren elf europäische Forschungspartner aus Wissenschaft und Industrie beteiligt, darunter die SySpro-Gruppe Betonbauteile e.V. durch ihr Mitglied Beton-Betz aus Kirchardt. Das von INTERREG Nord-West-Europa mit 4,4 Mio. Euro gefördert Projekt wird vom Fachgebiet Massivbau und Baukonstruktion der Technischen Universität Kaiserslautern geführt. Im Rahmen des dreijährigen Forschungsvorhabens wurden Mischungen für Recyclingbeton optimiert und neue Anwendungen für tragende und nichttragende Betonfertigteile und Betonwaren entwickelt, welche mit herkömmlichen Produkten sowohl qualitativ als auch wirtschaftlich vergleichbar sind.

Den Abschluss des Projektes bildet die praktische Anwendung der innovativen Betonfertigteile aus recycelten Ausgangsstoffen mittels dreier Pilotprojekte. Für zwei dieser Projekte produzierte und lieferte das SySpro-Mitglied Beton-Betz die Fertigteile. Bereits im September wurde der Öffentlichkeit eine repräsentative Lärmschutzwand auf einem Parkplatz an der französischen Autobahn A31 15 km von der Stadt Thionville entfernt mit der Inschrift: „Thionville – Porte de France“ präsentiert. Die dafür verwendeten Fertigteile sind absolut innovativ, da sie zu 100% aus recycelten Gesteinskörnungen bestehen und somit deutlich über dem französischen Grenzwert von maximal 20 % liegen (siehe Pressemitteilung vom August 2020).

Foto: Technische Universität Kaiserslautern, Fachbereich Bauingenieurwesen, Fachgebiet Massivbau und Baukonstruktion

Eine weitere praktische Anwendung der im Projekt gewonnen Erkenntnisse ist mit der Realisierung eines freistehenden, eingeschossigen Pavillons in Pirmasens geplant. Nahe dem dortigen Hochschulgelände entsteht auf einer Fläche von knapp fünf mal sieben Metern ein Pavillon, welcher sowohl eine Begegnungsstätte für Jung und Alt darstellt als auch eine attraktive Bühne für Musik und Künstler bieten kann. Der offen gestaltete Pavillon wird aus mehreren Halbfertigteilen mit Ortbetonergänzung aus R-Beton (Elementdecken und Doppelwand-Elemente) bestehen. Für dieses Projekt war die Beantragung einer vorhabenbezogenen Bauartgenehmigung (VBG) gemäß der Landesbauordnung Rheinland-Pfalz erforderlich. Grundlagen für die erteilte VBG lieferten entsprechende Gutachten und Stellungnahmen, die seitens der SySpro-Gruppe beauftragt und zur Verfügung gestellt wurden. Dies betrifft insbesondere die Verwendung von Fertigelementen aus Beton RC 25/30 mit R-Zement und 10% Brechsand plus 35% recycelte Gesteinskörnung, was deutlich über den Vorgaben der DAfStb-Richtlinien liegt. Komplettiert wird das Vorhaben mittels eines Ortbetons C25/30 mit Gesteinskörnungskategorie Typ 1 (max. 35 Vol-% Anteil RC-Gesteinskörnung) nach DAfStb-Richtlinie. Die offizielle Einweihung des Pavillons wird somit auf eindrucksvolle Weise aufzeigen, was heute schon alles mit Betonfertigteilen aus recycelten Baumaterialien in Deutschland möglich ist.

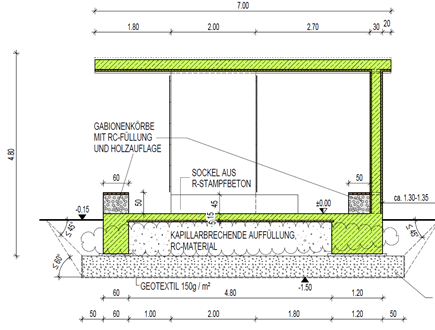
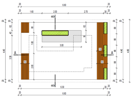
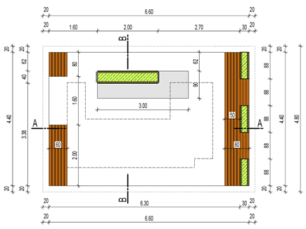
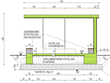
Grundriss Ausführungsplanung zeigt die zweiseitig gelagerte bzw. punktgestützte Decke 
(Ingenieurbüro Thiele Tragwerksplanung)
Schnitt Ausführungsplanung zeigt Doppelwandpfeiler, in die die Decken eingespannt sind 
(Ingenieurbüro Thiele Tragwerksplanung)

Gegen Ende des Projektes zeigen sich die Projektpartner äußerst zufrieden: „Für uns, das Betonwerk-Betz-Team als Mitglied der SySpro-Gruppe bedeutet die Zusammenarbeit mit diesem kompetenten Netzwerk europäischer Partner eine wichtige Steigerung unserer unternehmerischen Expertise. Es war wirklich eine Auszeichnung für uns, die Produkte für Thionville und Pirmasens im Rahmen des EU-Projektes SeRaMCo zu fertigen. Dieses Projekt hat uns von Anfang an begeistert, da wir den Knowhow-Gewinn im Bereich Recyclingbeton als Zukunftschance sowohl für unser Unternehmen als auch für eine gesamte Branche sehen. Die Verwendung von recyceltem Beton ist ein großer Beitrag zur Verringerung unseres ökologischen Fußabdrucks.“ betont Sascha Meiser, Geschäftsführer des Betonwerk Betz. Weitere Informationen sowie Interviews und ein Video mit den Projektbeteiligen können unter folgenden Links abgerufen werden: 

Interview mit den Projektpartnern: 
https://www.youtube.com/watch?v=GdPJygjUZhs&ab_channel=SeRaMC oProject

Link zum Projekt SeRaMCo: 
https://www.nweurope.eu/projects/project-search/seramco-secondary-raw-materials-for-concrete-precast-products/

Entladung der Deckenlemente (Ingenieurbüro Thiele Tragwerksplanung)

Entladung der Wandelemente (Ingenieurbüro Thiele Tragwerksplanung)


Projektbeteiligte (Auswahl)

Standort
Pirmasens, DE
Visulisierung Pavillon
TU Delft, Tai Wei Kan
Tragwerksplanung
Ingenieurbüro Thiele GmbH
Autor
Dr.-Ing. Thomas Kranzler

Eingesetzte SySpro Bauelemente



Ausführung durch


Weitere News