Fügung

Kombination Wand + Stütze
Lastabtragung hinter der Fassadenebene

Wohnhaus in Eglisau (CH)

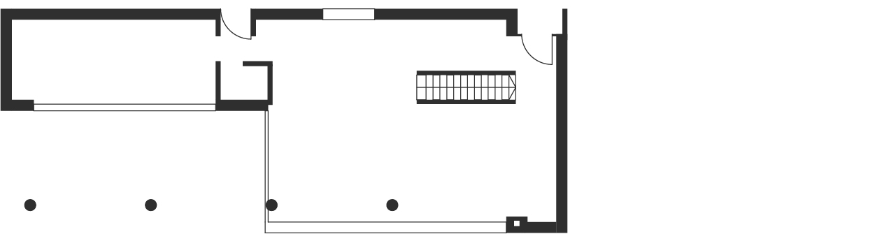
Das zweigeschossige Haus entwickelt sich parallel zum Hang. Das Flachdach ist nahezu ebenengleich mit der Hangkante. Im oberen Geschoss bietet der große Wohnraum einen großzügigen Blick in die Landschaft. Den hangseitigen Thermowänden steht eine punktförmige Lastabtragung durch Stützen auf der Talseite des Hauses gegenüber. Die Kombination der beiden Systeme ermöglicht es, den unterschiedlichen Anforderungen auf Tal- und Hangseite gerecht zu werden.

Architekt: Felix Oesch, Zürich
Ort: Eglisau (CH)
Baujahr: 2008

Ansicht
Grundriss
Schnitt
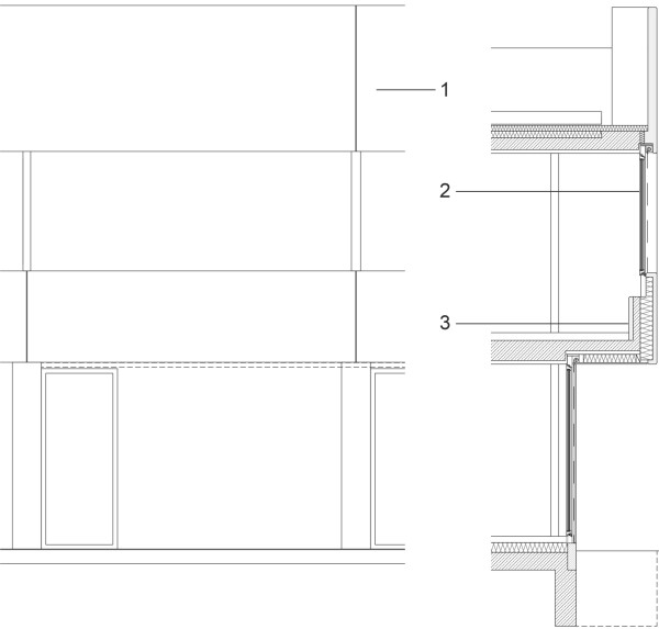
1. Brüstungselement als Dachrand
Deckschicht
Bituminöse Abdichtung
Dämmung
Dampfsperre
Filigrandecke
Vergussbeton

2. Holzfenster
Sonnenschutzrollo verdeckt
hinter Dachrand
Brüstungselement Thermowand

3. Thermowand
Außenschale
Dämmung
Kernbeton
Innenschale


Gestalten mit Thermowand-Elementen

Die von der Syspro-Gruppe entwickelten und im Jahr 1999 patentierten Thermowand-Elemente sind vorgefertigte Wandkonstruktionen mit werkseitig integrierter Kerndämmung. Sie bestehen aus dem konventionellen Doppelwandsystem mit Betonfertigteilplatten als Innen- und Außenschale sowie Vergussbeton. Syspro-Thermowände werden vornehmlich in der Konstruktion von Fassaden- und Außenwandbereichen von Gebäuden eingesetzt. Sie sind flexibel dimensionierbar, unkompliziert montierbar und können alle gewünschten energetischen Anforderungen an die Gebäudehülle, bis hin zum Niedriegstenergiehaus erfüllen.

Das Booklet „Gestalten mit Thermowand-Elementen“ richtet sich an Planer, Studierende, Architekten sowie Bauschaffende und ist als Download oder in Printform erhältlich.

Weitere Informationen und Unterlagen zum Bauen mit Thermowand-Elementen