Fügung

Gestaltung durch Schichtung
Thermowand + weitere Materialien

Welterbesaal in Unteruhldingen

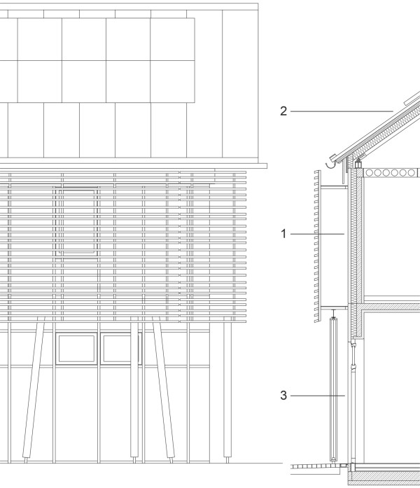
Unteruhldingen ist bekannt für sein Weltkulturerbe: die steinzeitlichen Pfahlbauten. Eine leichte Stahl-konstruktion mit horizontalen Holz-lamellen umhüllt im Obergeschoss allseitig die zueinander verschobenen Satteldach-häuser und überlagert sich mit den transparenten Flächen und geschlossenen Thermowand-Elementen. Die Stahlkonstruktion, auf Stämmen aufgelagert, verweist auf die stein-zeitlichen Pfahlbauten.

Architekt: SICK freie Architekten, Uhldingen-Mühlhofen
Ort: Uhldingen
Baujahr: 2008/2009

Ansicht
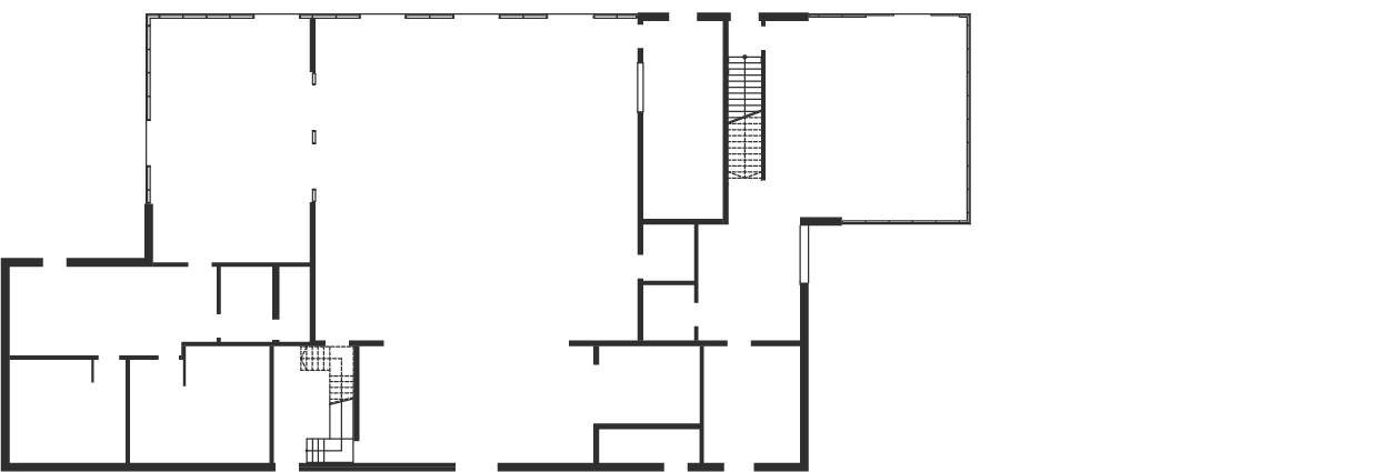
Grundriss
Schnitt
1. Thermowand, mit Matrize
strukturierte Oberfläche
leichte Fassadenkonstruktion
auf Holzstämmen aufgestellt

2. Paneeldach auf Stahltragwerk

3. Pfostenriegelfassade


Gestalten mit Thermowand-Elementen

Die von der Syspro-Gruppe entwickelten und im Jahr 1999 patentierten Thermowand-Elemente sind vorgefertigte Wandkonstruktionen mit werkseitig integrierter Kerndämmung. Sie bestehen aus dem konventionellen Doppelwandsystem mit Betonfertigteilplatten als Innen- und Außenschale sowie Vergussbeton. Syspro-Thermowände werden vornehmlich in der Konstruktion von Fassaden- und Außenwandbereichen von Gebäuden eingesetzt. Sie sind flexibel dimensionierbar, unkompliziert montierbar und können alle gewünschten energetischen Anforderungen an die Gebäudehülle, bis hin zum Niedriegstenergiehaus erfüllen.

Das Booklet „Gestalten mit Thermowand-Elementen“ richtet sich an Planer, Studierende, Architekten sowie Bauschaffende und ist als Download oder in Printform erhältlich.

Weitere Informationen und Unterlagen zum Bauen mit Thermowand-Elementen