Fügung

Vertikale Wandelemente
wechselseitig geschossdeckenübergreifend

Kita in Weißenfeld

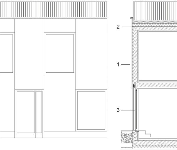
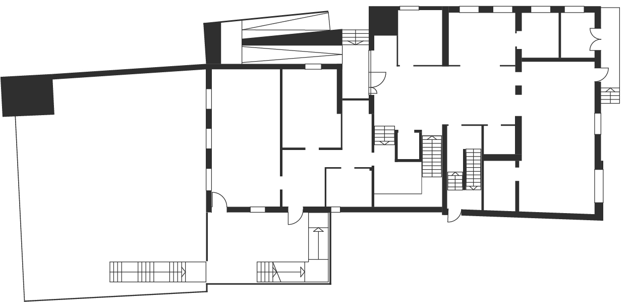
Das Bestandsgebäude der ehemaligen Schnapsbrennerei Weißenfeld wurde saniert und um einen zweigeschossigen Neubau erweitert. Auf der Gartenseite des Neubaus wurden Thermowände im wechselnden Rhythmus mit Fensterelementen angeordnet. Die Elemente im Obergeschoss verschieben sich in Bezug zum Erdgeschoss um ein Feld. Diese Anordnung ermöglicht eine geschossdeckenübergreifende Fassadenfügung, bei der sich explizit keine Geschossdecke abbildet.

Architekt: Grund Architekten GbR, Weißenfeld
Ort: Weißenfeld
Baujahr: 2014

Ansicht
Grundriss
Schnitt
1. Thermowand
Außenschale
Dämmung 140 mm PUR
Kernbeton
Innenschale

2. Terrassen- / Dachaufbau
30 mm Gehbelag auf Feinkies
Dachabdichtung
160 mm PUR Dämmung (WLG 024)
begehbar
Dampfbremse/ Notabdichtung
200 mm StB Decke

3. Holz-/ Alufenster
3-fach Isolierglas
bodengleich im EG
mit Entwässerungsrinne


Gestalten mit Thermowand-Elementen

Die von der Syspro-Gruppe entwickelten und im Jahr 1999 patentierten Thermowand-Elemente sind vorgefertigte Wandkonstruktionen mit werkseitig integrierter Kerndämmung. Sie bestehen aus dem konventionellen Doppelwandsystem mit Betonfertigteilplatten als Innen- und Außenschale sowie Vergussbeton. Syspro-Thermowände werden vornehmlich in der Konstruktion von Fassaden- und Außenwandbereichen von Gebäuden eingesetzt. Sie sind flexibel dimensionierbar, unkompliziert montierbar und können alle gewünschten energetischen Anforderungen an die Gebäudehülle, bis hin zum Niedriegstenergiehaus erfüllen.

Das Booklet „Gestalten mit Thermowand-Elementen“ richtet sich an Planer, Studierende, Architekten sowie Bauschaffende und ist als Download oder in Printform erhältlich.

Weitere Informationen und Unterlagen zum Bauen mit Thermowand-Elementen