Fügung

Panoramafenster

Verwaltungs- und Lagergebäude in Recklinghausen

Die Außenschale wird bis zur Oberkante der Attika hochgeführt. Aufgrund der notwendigen Steifigkeit bei Transport ­und Montage nimmt die Schalendicke im oberen Decken- und Attikabereich zu.
Beim Übergang von der Keller- zur Außenwand können die notwendigen Stärken von Wärmedämmung und Füllbeton je nach Bedarf variiert werden. Nach dem Montieren der Elemente wird der Ortbeton verfüllt und auf der Höhe der Oberkante der Dämmplatte in der Wand abgezogen.

Architekt: e.a+d Lehmann+Müller Architekten PartGmbB, Münster
Ort: Recklinghausen
Baujahr: 2015

Ansicht
Grundriss
Schnitt
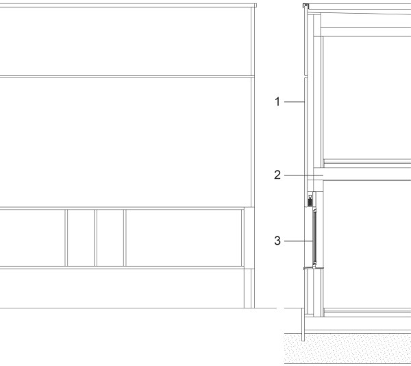
1. Thermowand
Außenschale
Dämmung
Kernbeton
Innenschale

2. StB-Decke
Decke unterseitig verputzt

3. Fenster Aluminium
Fensterbank außen und
innen Aluminium
Sonnenschutz Raffstore
verdeckt hinter Außenschale


Gestalten mit Thermowand-Elementen

Die von der Syspro-Gruppe entwickelten und im Jahr 1999 patentierten Thermowand-Elemente sind vorgefertigte Wandkonstruktionen mit werkseitig integrierter Kerndämmung. Sie bestehen aus dem konventionellen Doppelwandsystem mit Betonfertigteilplatten als Innen- und Außenschale sowie Vergussbeton. Syspro-Thermowände werden vornehmlich in der Konstruktion von Fassaden- und Außenwandbereichen von Gebäuden eingesetzt. Sie sind flexibel dimensionierbar, unkompliziert montierbar und können alle gewünschten energetischen Anforderungen an die Gebäudehülle, bis hin zum Niedriegstenergiehaus erfüllen.

Das Booklet „Gestalten mit Thermowand-Elementen“ richtet sich an Planer, Studierende, Architekten sowie Bauschaffende und ist als Download oder in Printform erhältlich.

Weitere Informationen und Unterlagen zum Bauen mit Thermowand-Elementen